Продается коттедж, КП Заповедник, 10

Свердловская область, Сысертский, КП Заповедник, 10
22 000 000

Ипотека: 96 857 руб./мес. Получить одобрение

Вид сделки: 
прямая продажа
Торг: 
Нет
Ипотека: 
Да
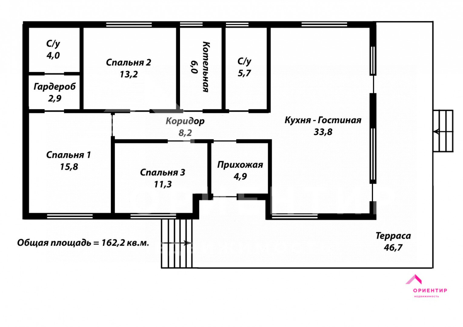
Общая площадь: 
162.2 м2
Жилая площадь: 
40.3 м2
Площадь кухни: 
33.8 м2
Площадь участка: 
10.0 сот
Тип участка: 
ИЖС
Ремонт: 
требует ремонта
Число комнат: 
4
Этаж: 
1
Этажность: 
1
Балкон: 
терраса
Тип дома: 
блочный
Год постройки: 
2024
Электричество: 
Да
Канализация: 
Да
Отопление: 
Да
Водопровод: 
Да
Газ: 
Да

Арт. 88477079 Готовый коттедж в скандинавском стиле c дизайнерским ремонтом!

Планировка дома:
Просторная кухня-гостиная с панорамным остеклением и выходом на террасу3 отдельные спальни:Родительская спальняДетская комнатаГостевая спальняВанные комнаты:Большая ванная комнатаГостевой санузелПрихожая со встроенным шкафом-купе
Дом продается полностью меблированным — вся мебель, техника и элементы декора, представленные на фотографиях, включены в аренду.
Расположение:
Квартал Счастье (группа «Заповедник»)Сысертский район23 км от ЕкатеринбургаВремя до центра города: 40 минутЧелябинский тракт

Технические характеристики дома:
Фундамент: бетонный ленточный на сваях, монолитная плита с тёплым полом;
Стены: твинблок 300 мм (D500);
Утеплитель: минералловата 100 кг\м3;
Кровля: двухскатная с металлочерепицей с утеплителем механизированной укладки эковата плотностью 35 кг/м3, толщиной 250 мм;
Окна: RЕНАU с ламинацией, 5-камерный профиль 70 мм, стеклопакет 2-камерный 40 мм с энергосбережением;
Дверь входная: 5-камерный профиль 70 мм, 2х камерный стеклопакет 40 мм с энергосбережением;
Терраса: монолитная плита.

Коммуникации:
Канализация: септик двухкамерный стеклопластиковый;
Вода: централизованая, очищенная до питьевой, водонагреватель;
Отопление: тёплые водяные полы, электрокотел.
Электричество: 15 кВт заведено в дом;
Приточно-вытяжная вентиляция.
Есть возможность завести газ на участок!

Инфраструктура:
У жителей поселка есть доступ к разнообразной инфраструктуре «Заповедника», в которую входят:
Обустроенные прогулочные аллеи (лесопарк 200 Га), пруд и 2 речки Зоопарк 10 ГаПродуктовые магазины на территории, пункт выдачи ozon 22 детские зоны разной тематикиСпортивный комплекс: зона Workout, ВМХ-трасса, поле для мини-футбола, баскетбольная площадкаТропа здоровья для прогулок – 4,3 км, 1,7 км, 500 м.Гриль бар, ресторан, строительный магазинДетский сад и экономическая школа

Особые преимущества:
Полностью готовый к заселению дом
Дизайнерский ремонт
Качественная отделка
Развитая инфраструктура
Удобная транспортная доступность

Юридическая чистота сделки гарантирована сертификатом от компании «Ориентир».
Возможна ипотека. Просмотр по записи, звоните уже сегодня!

Ваш персональный менеджер

Отправить сообщение специалисту

Нажимая кнопку "Отправить сообщение", я соглашаюсь с политикой конфиденциальности.

Заказать звонок

Нажимая кнопку "Заказать", я соглашаюсь с политикой конфиденциальности.


Заполните форму и наши сотрудники обязательно свяжутся с Вами в удобное для Вас время!